Избранное

Строительство одноэтажного дома для постоянного проживания из СИП панелей по проекту «Пешки», д. Пешки, Солнечногорский г.о.

Гарантия 5 лет Ипотека Маткап

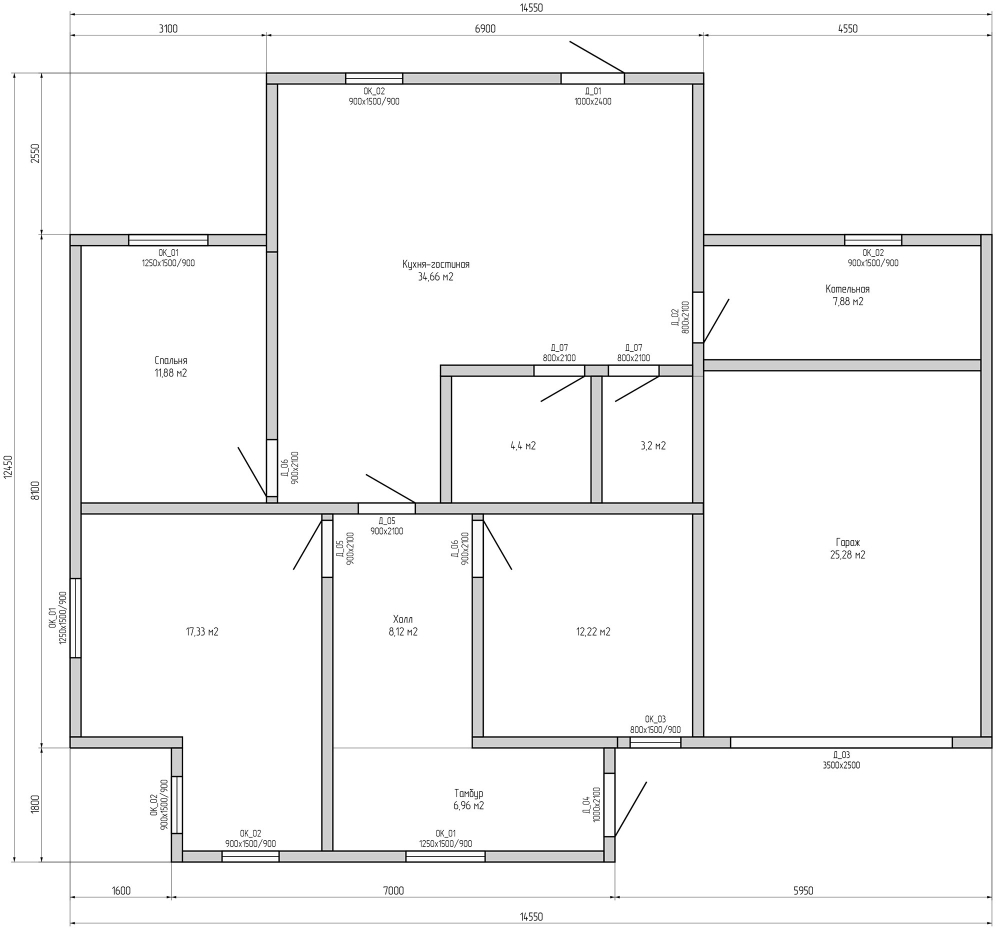
23.11.2025 г. началось строительство дома в Солнечногорском р-не, д. Пешки, по проекту «Пешки», 145 м², 14,5х12,4 м

Проект, площадь и габариты дома

  • Проект «Пешки»
  • Площадь дома — 145 м²
  • Размеры дома по тепловому контуру - 14,5х12,4 м.

Строительство дома состоит из

Монтаж фундамента

  • В данном проекте строительство происходит на существующий фундамент.

Монтаж коробки дома

  • Обвязка фундамента размером 200х200 мм (100х200 мм сдвоенный).
  • Монтаж нулевого перекрытия - СИП панели усиленные, толщина 224х625 мм, усиленные.
  • Соединения панелей осуществляется брусом камерной сушки, строганным.
  • Возводим наружные стены 1 этажа дома — СИП панели, толщина стен 174 мм, высота 2800 мм.
  • Монтаж чердачного перекрытия - СИП панели 174 мм.
  • Соединения панелей осуществляется брусом камерной сушки, строганным.

Монтаж крыши и кровли

  • Крыша - стропильная система, 150х50 мм.
  • Настил кровли - металлочерепица, производитель Grand Line, 0.5 мм.
  • Цвет предоставляется на выбор заказчику.
  • Установка вентиляционных проходов на крыши.

Установка окон и входной двери

  • Окна ПВХ Рехау 70 Грация, двухкамерный стеклопакет.
  • Отлив, подоконник, москитная сетка — в комплекте.
  • Открывание створок на окнах - по согласованию с заказчиком.
  • Входная дверь с терморазрывом, утепленная, металлическая.

Стоимость не подлежит изменению после подписания настоящего договора.

Дополнительные строительные работы со стороны Заказчика будут оформляться следующим дополнительным соглашением.

Хочу такой дом!

Пешки
Проект «Пешки»
145 м²   14,5х12,4м   1 этаж  

Посмотреть все объекты

Этот сайт использует файлы cookie и метаданные. Продолжая просматривать его, вы соглашаетесь на использование нами файлов cookie и метаданных в соответствии с Политикой конфиденциальности. +