Избранное

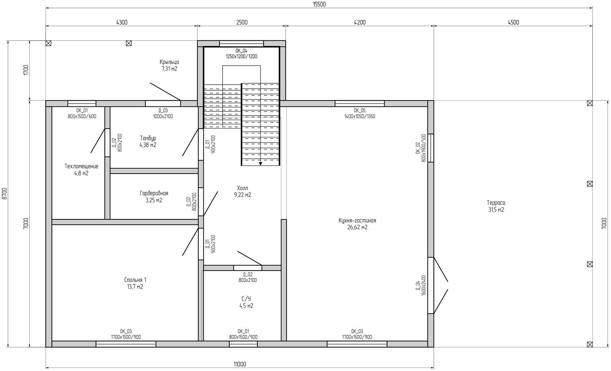
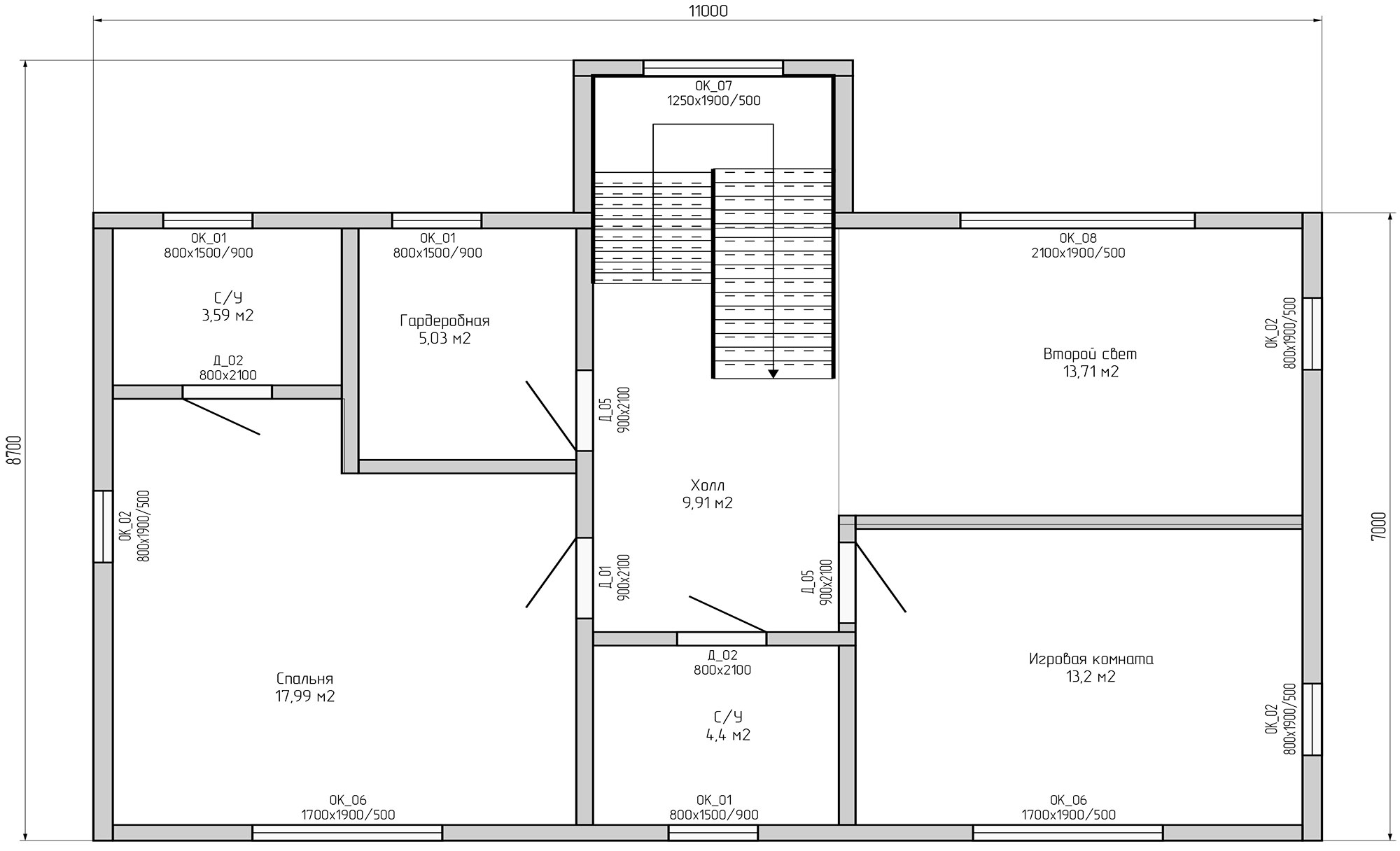
Проект дома «Кучино» из сип-панелей
площадью 163 м², размером 7х11 м, 2 этажа, с террасой

Гарантия 5 лет Ипотека Маткап
7х11 м
2 спальни

Включено в проект

  • Выезд инженера на объект
  • Индивидуальный проект
  • Выбор цвета кровли

Дополнительно

  • Изменение габаритов или отзеркаливание проекта дома
  • Добавить/убрать террасу или крыльцо
  • Замена фундамента, металлочерепицы на другой материал или смена цвета окон (ламинация)

Подробнее о проекте

Фундамент

Монтаж фундамента

  • Железо-бетонные сваи С30.15-3 (3000x150x150 мм).
  • Железо-бетонные оголовоки 250x250.
  • Монтаж железо-бетонных свай.
  • Доставка материалов и техники.

Домокомплект

Монтаж комплекта дома

Нулевое перекрытие

  • Обвязка фундамента 200x200 мм (брус 200x100 мм сдвоенным).
  • Гидроизоляция СИП панелей мастикой с наружной стороны.
  • Укладка СИП панелей нулевого перекрытия, панели 224x625x2500 мм.
  • Соединение панелей брусом строганым камерной сушки 200x100 мм.
  • Обрамление панелей брусом камерной сушки 200x50 мм.

Возведение стен

  • Возведение стен первого, второго этажа дома высотой 2800 мм. Наружные и внутренние панели СИП 174x1250x2800 мм.
  • Соединение стен брусом 150x100мм, камерная сушка строганный.
  • Обрамление панелей 150x50 мм брусом камерная сушка строганный.

Монтаж с использованием комплектующих, которые необходимы для сборки дома из СИП панелей в соответствии с проектом.

Перекрытия

  • Монтаж чердачного и межэтажного перекрытия из СИП панелей 174 (224x625x2500 мм.).
  • Соединение панелей брусом камерной сушки, строганным 200x100 мм.
  • Обрамление панелей 200x50 мм в соответствии с проектом.
  • Монтаж стропильной системы в соответствии с проектом, стропила брус 50x150 мм, обрешётка доска 25x100 мм, контробрешётка, рейка, использование кровельной мембраны.
  • Металлочерепица Grand Line 0,5 мм (цвет на выбор заказчика).
  • Комплектующие, мембрана, коньковая планка. Карнизная ветровые планки.
  • Чердачная лестница Факро.
  • Вентиляционные проходы.

Окна и двери

Монтаж окон

  • Профиль Рехау Грацио 70 мм, 2-х камерный стеклопакет, 5-ти камерный профиль. Цвет снаружи и внутри белый.
  • Подоконник 200 мм, отлив 100 мм.
  • Москитная сетка в комплекте в цвет окна на поворотно-откидные створки.
  • Вентиляционные клапаны.

Монтаж дверей

  • Дверь входная на крыльце стальная специальной конструкции с термо разрывом.
  • Межкомнатные двери в соответствии с проектом.

Опции проекта

Коммуникации

  • Разводка коммуникаций в доме.
  • Монтаж скважины.
  • Монтаж канализации.

Наружная отделка

  • Наружная отделка.

Подход к работе

О работе

  • Все работы выполняем с использованием материалов, согласованных с Заказчиком и собственного оборудования.
  • Все работы проводим в соответствии с требованиями СанПиН 2.2.3.1384-03 «Гигиенические, требования к организации строительного производства и строительных работ», СНиП 12-03-2001 и СНиП 12- 04-2002 «Безопасность труда в строительстве» и другими обязательными требованиями.
  • Ответственно подходим к соблюдению действующих нормативных документов, в т.ч. правил пожарной безопасности, охраны труда, санитарно-гигиенического режима при выполнении работ.
  • Работы проводим в полном объеме, качественно и в указанные сроки.
  • Берём на себя обязательства по безвозмездному устранению выявленных дефектов в гарантийный период эксплуатации дома.

Другиепроекты домов

Готовые работы по проекту Кучино

Этот сайт использует файлы cookie и метаданные. Продолжая просматривать его, вы соглашаетесь на использование нами файлов cookie и метаданных в соответствии с Политикой конфиденциальности. +