Избранное

Строительство одноэтажного дома из СИП панелей, г. Лыткарино

Гарантия 5 лет Ипотека Маткап

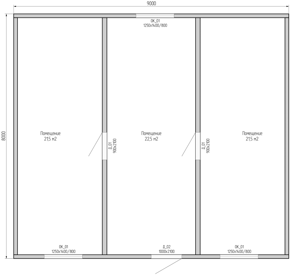
10.02.2026 г. началось строительство дома в Московской области, г. Лыткарино, 72 м², 9х8 м

  • Площадь дома — 72 м²
  • Размеры дома по тепловому контуру - 9х8 м.

Этот сайт использует файлы cookie и метаданные. Продолжая просматривать его, вы соглашаетесь на использование нами файлов cookie и метаданных в соответствии с Политикой конфиденциальности. +