Избранное

Строительство одноэтажного дома для постоянного проживания из СИП панелей по проекту «Яна», с. Братовщина, г. Пушкино

Гарантия 5 лет Ипотека Маткап

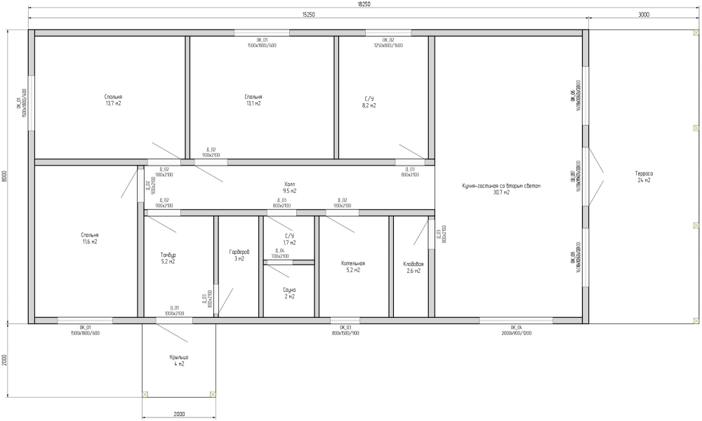
05.03.2026 началось строительство дома в г. Пушкино, с. Братовщина, по проекту «Яна», 8х15,2 м, 121,6 м² + терраса/крыльцо 28 м²

Проект, площадь и габариты дома

  • Проект «Яна»
  • Площадь дома — 121,6 м²
  • Размеры дома по тепловому контуру - 8х15,2 м, с террасой, с крыльцом.

Строительство дома состоит из

Монтаж фундамента

  • Фундамент свайно-винтовой, диаметр 108 мм, длина 2 500 мм + обвязка металлический уголком 40х40 мм.

Монтаж коробки дома

  • Обвязка фундамента размером 200х200 мм, сдвоенный брус 200х100 мм.
  • Монтаж нулевого перекрытия - СИП панели, толщина 224х625 мм, усиленные.
  • Соединения панелей осуществляется брусом камерной сушки, строганным.
  • Возводим наружные стены 1 этажа дома — СИП панели, толщина стен 174 мм, высота 2800 мм.
  • Внутренние стены - СИП панели, толщина стен 124 мм, высота 2 800 мм.
  • Обшивка стен гипсокартоном.
  • Монтаж чердачного перекрытия - СИП панели 174 мм.
  • Соединения панелей осуществляется брусом камерной сушки, строганным.

Монтаж крыши и кровли

  • Крыша - стропильная система, 150х50 мм
  • Ворой свет — СИП панели, 174 мм.
  • Настил кровли - металлочерепиц, 0,5 мм, производитель Grand Line.
  • Цвет предоставляется на выбор заказчику.
  • Установка вентиляционных проходов на крыши.

Установка окон и входной двери

  • Окна ПВХ Рехау 70 Грация, двухкамерный стеклопакет.
  • Отлив, подоконник, москитная сетка — в комплекте.
  • Открывание створок на окнах - по согласованию с заказчиком.
  • Входная дверь с терморазрывом, утепленная, металлическая.

Дополнительно

  • Наружная отделка.
  • Коммуникации на участке и в доме.
  • Скважина, септик.
  • Отопление, электрика, сантехника, теплый пол, вентиляция.

Стоимость не подлежит изменению после подписания настоящего договора.

Дополнительные строительные работы со стороны Заказчика будут оформляться следующим дополнительным соглашением.

Этот сайт использует файлы cookie и метаданные. Продолжая просматривать его, вы соглашаетесь на использование нами файлов cookie и метаданных в соответствии с Политикой конфиденциальности. +