Избранное

Строительство одноэтажного дома для постоянного проживания из СИП панелей по проекту «Ямкино-2», д. Ямкино, Ногинский район

Гарантия 5 лет Ипотека Маткап

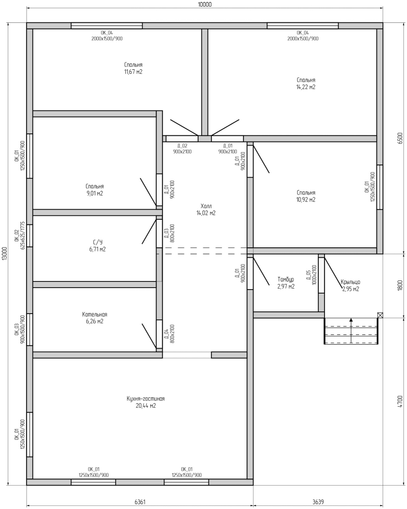
07.09.2025 г. началось строительство дома в Ногинском р-не, д. Ямкино, по проекту «Ямкино-2», 110 м², 10х13 м

Проект, площадь и габариты дома

Строительство дома состоит из

Монтаж фундамента

  • В данном проекте фундамент ЖБ сваи, сечение 150х150 мм, длина 3 000 мм..
  • Обвязка фундамента брусом 200х200 мм, сдвоенным брусом 200х100 мм.

Монтаж коробки дома

  • Нулевое перекрытие 224х625 мм усиленных СИП панелей.
  • Соединение панелей - брусом, камерная сушка, строганный.
  • Наружные и внутренние стены стены 1-го этажа - СИП панели, толщина стен 174 мм, Высота 2 800 мм.

Монтаж крыши и кровли

  • Чердачное перекрытие - СИП панели 174 мм, соединения брусом, камерная сушка, строганный.
  • Крыша - стропильная система, стропила 150х50 мм.

Настил крыши

  • Кровля — металлочерепица Grand Line, 05 мм, серия Satin.
  • Цвет предоставляется на выбор заказчику.
  • Установка вентиляционных проходов на крыши, диаметр 125 мм, 150 мм.
  • Установка чердачной лестнице Факро 1200х600 мм, Термо.
  • Установка снегозадержателей.

Установка окон и входной двери

  • Окна ПВХ Рехау Грация 70 мм, двухкамерный стеклопакет.
  • Отлив, подоконник, москитная сетка — в комплекте.
  • Открывание створок на окнах по согласованию с заказчиком.
  • Входная дверь — металлическая, с терморазрывом, утепленная.

Стоимость от 4 000 000 рублей.

Наружная отделка, коммуникации на участке, коммуникации в доме просчитываются индивидуально, учитывав особенности района строительства и пожелания Заказчика

Стоимость не подлежит изменению после подписания настоящего договора.

Дополнительные строительные работы со стороны Заказчика будут оформляться следующим дополнительным соглашением.

Хочу такой дом!

Ямкино-2
Проект «Ямкино-2»
110 м²   10х13м   1 этаж  

Посмотреть все объекты

Этот сайт использует файлы cookie и метаданные. Продолжая просматривать его, вы соглашаетесь на использование нами файлов cookie и метаданных в соответствии с Политикой конфиденциальности. +