Избранное

Строительство одноэтажного дома для постоянного проживания из СИП панелей по проекту «Соловьевы», Носовихинское ш., г. Балашиха

Гарантия 5 лет Ипотека Маткап

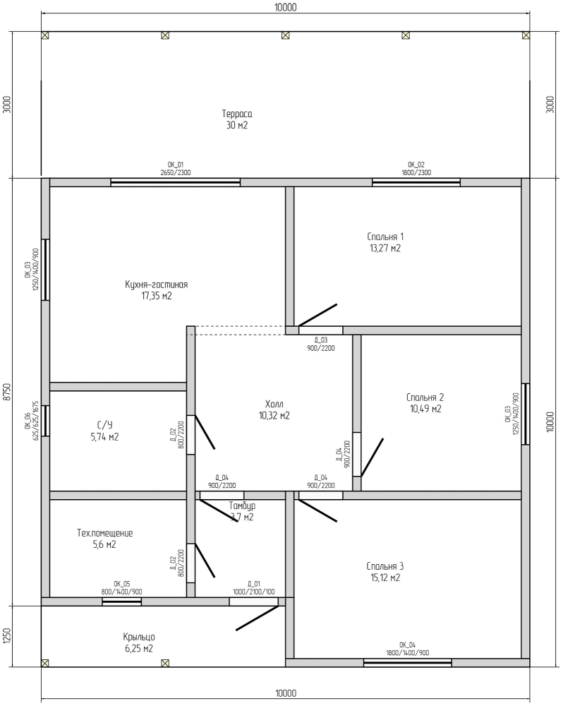
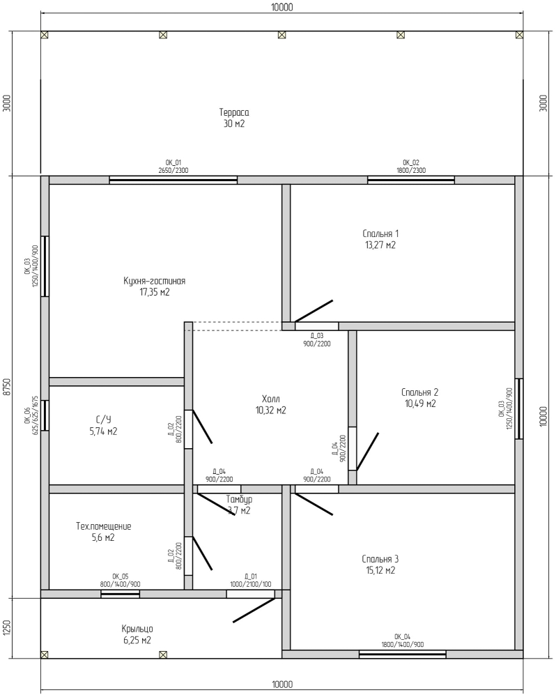
10.11.2025 года началось строительство дома в г. Балашиха, Носовихинское ш., по проекту «Соловьевы», 10х10 м, 93 м² + терраса

Проект, площадь и габариты дома

Стоимость не подлежит изменению после подписания настоящего договора.

Дополнительные строительные работы со стороны Заказчика будут оформляться следующим дополнительным соглашением.

Хочу такой дом!

Соловьевы
Проект «Соловьевы»
от 3 250 000 руб.
93,7 м²   10х10м   1 этаж  

Посмотреть все объекты

Этот сайт использует файлы cookie и метаданные. Продолжая просматривать его, вы соглашаетесь на использование нами файлов cookie и метаданных в соответствии с Политикой конфиденциальности. +