Избранное

Строительство одноэтажного дома для постоянного проживания из СИП панелей по проекту «Сильвер-3», д. Мамонтово, Ногинский г.о.

Гарантия 5 лет Ипотека Маткап

27.01.2026 г. началось строительства дома в Ногинском р-не, д. Мамонтово, по проекту «Сильвер-3», 109 м², 12,5х8,75 + + терраса + крыльцо

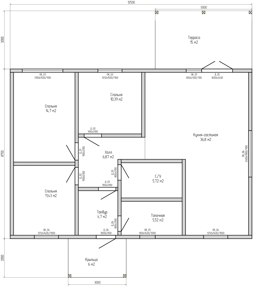
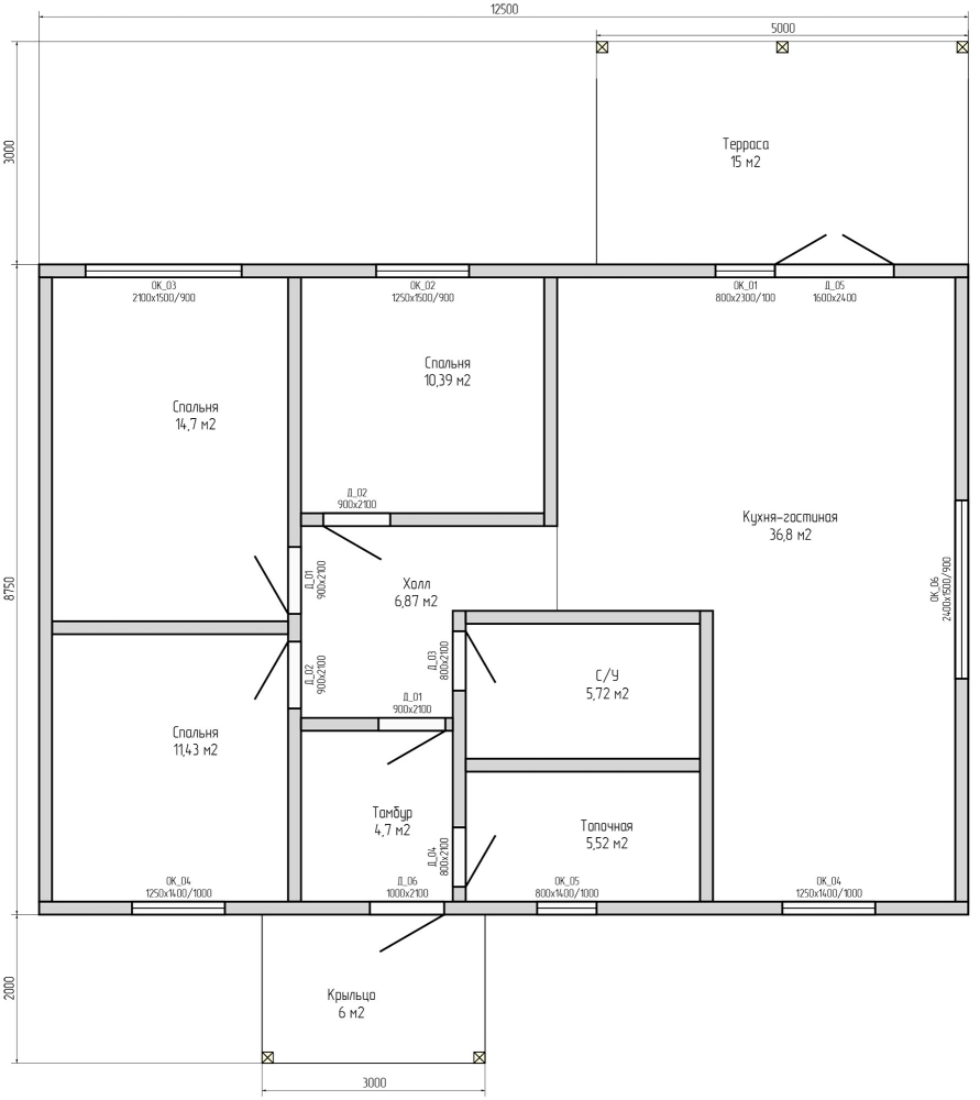
Проект, площадь и габариты дома

  • Проект «Сильвер-3»
  • Площадь дома — 109 м²
  • Размеры дома по тепловому контуру - 12,5х8,75 м + терраса 15 м² + крыльцо 3,5 м².

Строительство дома состоит из

Монтаж фундамента

  • В данном проекте фундамент - ЖБ сваи, сечение 150х150 мм, длина 3000 мм.

Монтаж коробки дома

  • Обвязка фундамента размером 200х200 мм (100х200 мм сдвоенный).
  • Монтаж нулевого перекрытия - СИП панели усиленные, толщина 224х625 мм.
  • Возводим наружные и внутренние стены 1 этажа дома — СИП панели, толщина стен 174 мм, высота 2800 мм.
  • Стены — гипсокартон подготовка к предчистовой отделки.
  • Монтаж чердачного перекрытия - СИП панели 174 мм.
  • Соединение панелей пиломатериал, камерная сушка, строганный.

Монтаж крыши и кровли

  • Крыша - стропильная система, 150х50 мм.
  • Настил кровли - металлочерепица , производитель Grand Line, 0.5 мм, серия Satin
  • Цвет предоставляется на выбор заказчику.
  • Установка вентиляционных проходов на крыши диаметр 125 мм, 150 мм
  • Установка Чердачной лестнице Факро 1200х600 мм Термо.
  • Установка снегозадержателей.

Установка окон и входной двери

  • Окна ВХ Рехау 70 мм, двухкамерный стеклопакет.
  • Отлив, подоконник, москитная сетка — в комплекте.
  • Открывание створок на окнах - по согласованию с заказчиком.
  • Входная дверь с терморазрывом, утепленная, металлическая.

Опции проекта

  • Монтаж септика и скважины на участке.
  • Монтаж отопления.

Стоимость от 4 800 000 рублей.

Стоимость не подлежит изменению после подписания настоящего договора.

Дополнительные строительные работы со стороны Заказчика будут оформляться следующим дополнительным соглашением.

Хочу такой дом!

Мамонтово
Проект «Мамонтово»
100 м²   5х10м   2 этажа  

Посмотреть все объекты

Этот сайт использует файлы cookie и метаданные. Продолжая просматривать его, вы соглашаетесь на использование нами файлов cookie и метаданных в соответствии с Политикой конфиденциальности. +