Избранное

Строительство одноэтажного дома для постоянного проживания из СИП панелей по проекту «Опушкино-3», д. Новое Литвиново, Щелковский г.о.

Гарантия 5 лет Ипотека Маткап

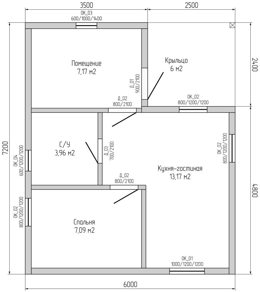
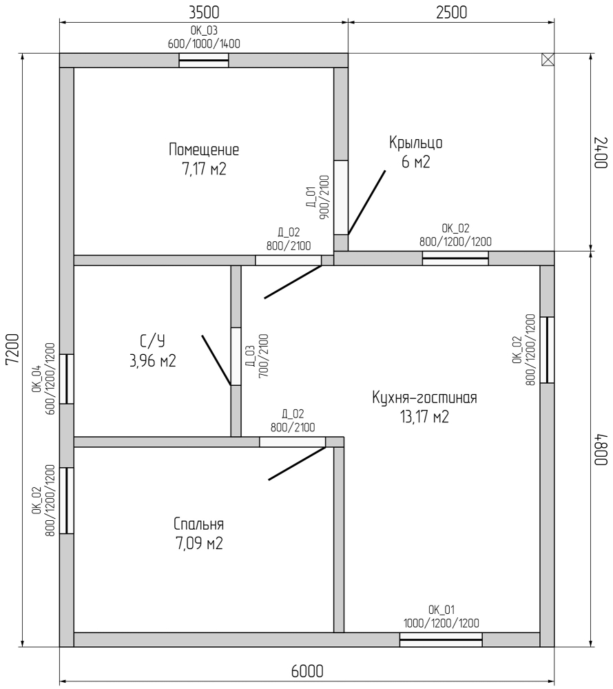
10.01.2026 г. началось строительство дома в Щелковском р-не, Новое Литвиново, по проекту «Опушкино-3», 7,2х6 м, 43 м² + крыльцо

Проект, площадь и габариты дома

Стоимость не подлежит изменению после подписания настоящего договора.

Дополнительные строительные работы со стороны Заказчика будут оформляться следующим дополнительным соглашением.

Хочу такой дом!

Новое Литвиново
Проект «Новое Литвиново»
134 м²   10х7,5м   2 этажа  

Посмотреть все объекты

Этот сайт использует файлы cookie и метаданные. Продолжая просматривать его, вы соглашаетесь на использование нами файлов cookie и метаданных в соответствии с Политикой конфиденциальности. +