Избранное

Строительство одноэтажного дома для постоянного проживания из СИП панелей по проекту «Молзино», д. Молзино, Ногинскоий г.о.

Гарантия 5 лет Ипотека Маткап

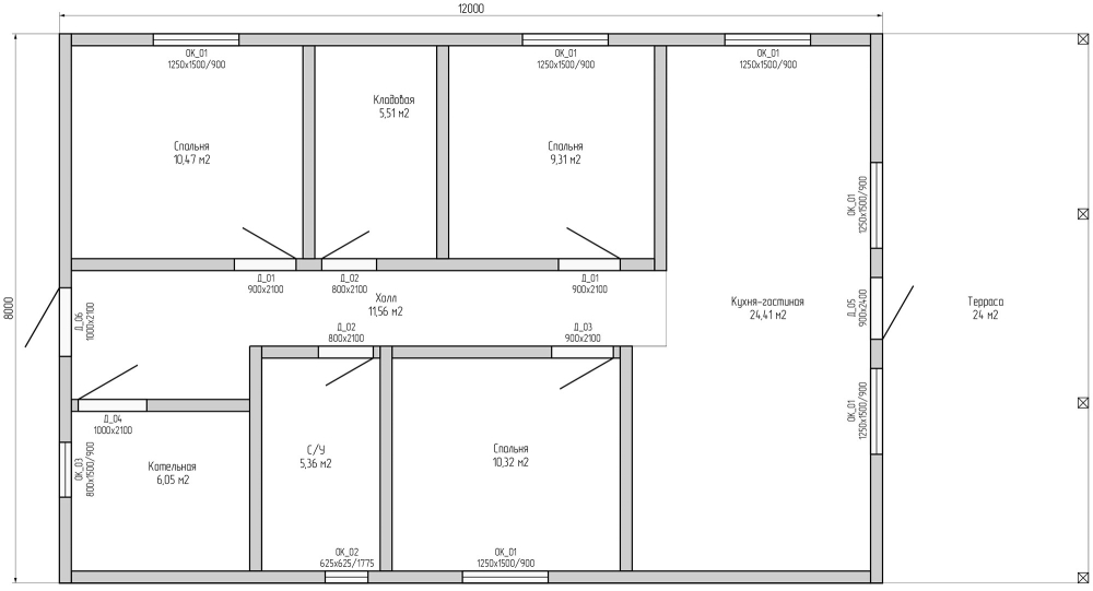
04.12.2025 г. началось строительство дома в Ногинском р-не, д. Молзино, по проекту «Молзино», 96 м², 12х8 м + терраса 3х8 м, 24 м²

Проект, площадь и габариты дома

  • Проект «Молзино»
  • Площадь дома — 96 м²
  • Размеры дома по тепловому контуру - 12х8 м + терраса 3х8 м, 24 м².

Строительство дома состоит из

Монтаж фундамента

  • Фундамент свайно винтовой, диаметр 108 мм, длина 2500 мм
  • Обвязка металлический уголком 40х40 мм.

Монтаж коробки дома

  • Обвязка фундамента размером 200х200 мм (100х200 мм сдвоенный).
  • Монтаж нулевого перекрытия - СИП панели усиленные, толщина 224х625 мм, усиленные.
  • Соединения панелей осуществляется брусом камерной сушки, строганным.
  • Возводим наружные стены 1 этажа дома — СИП панели, толщина стен 174 мм, высота 2800 мм.
  • Монтаж чердачного перекрытия - СИП панели 174 мм.
  • Соединения панелей осуществляется брусом камерной сушки, строганным.

Монтаж крыши и кровли

  • Крыша - стропильная система, 150х50 мм.
  • Настил кровли - металлочерепица, производитель Grand Line, 0.5 мм.
  • Цвет предоставляется на выбор заказчику.
  • Установка вентиляционных проходов на крыши.

Установка окон и входной двери

  • Окна ПВХ Рехау 70 Грация, двухкамерный стеклопакет.
  • Отлив, подоконник, москитная сетка — в комплекте.
  • Открывание створок на окнах - по согласованию с заказчиком.
  • Входная дверь с терморазрывом, утепленная, металлическая.

Стоимость не подлежит изменению после подписания настоящего договора.

Дополнительные строительные работы со стороны Заказчика будут оформляться следующим дополнительным соглашением.

Хочу такой дом!

Молзино
Проект «Молзино»
96 м²   12х8м   1 этаж  

Посмотреть все объекты

Этот сайт использует файлы cookie и метаданные. Продолжая просматривать его, вы соглашаетесь на использование нами файлов cookie и метаданных в соответствии с Политикой конфиденциальности. +