Избранное

Строительство одноэтажного дома для постоянного проживания из СИП панелей по проекту «Холуденово-2», д. Холуденово, Раменский г.о.

Гарантия 5 лет Ипотека Маткап

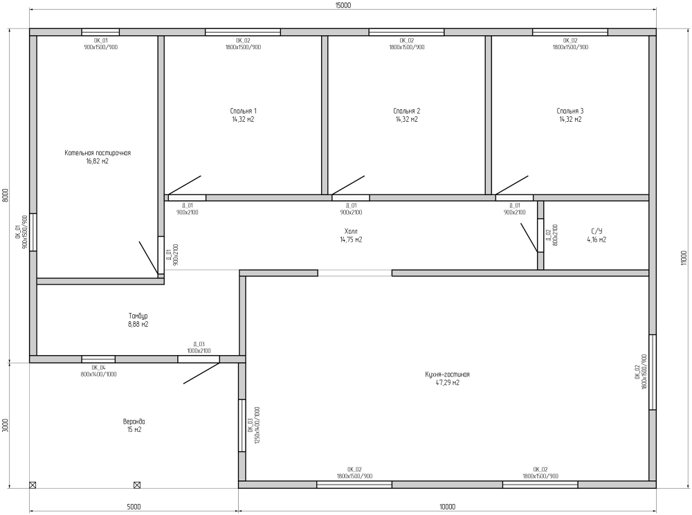
25.09.2025 г. началось строительство дома в Раменском р-не, д. Холуденово, по проекту «Холуденово-2», 15х11 м, 150 м² + веранда 15 м²

Проект, площадь и габариты дома

Строительство дома состоит из

Монтаж фундамента

  • В данном проекте фундамент - винтовые сваи, диаметр 108 мм, длина 2 500 мм.

Монтаж коробки дома

  • Обвязка фундамента размером 200х200 мм (100х200 мм сдвоенный).
  • Монтаж нулевого перекрытия - СИП панели усиленные, толщина 224х625 мм, усиленные .
  • Соединения панелей осуществляется брусом камерной сушки, строганным.
  • Возводим наружные стены 1 этажа дома — СИП панели, толщина стен 174 мм, высота 2800 мм.
  • Внутрение перегородки каркас из пиломатериала 145х45 мм.
  • Монтаж чердачного перекрытия - СИП панели 174 мм.
  • Соединения панелей осуществляется брусом камерной сушки, строганным.

Монтаж крыши и кровли

  • Крыша - стропильная система, 150х50 мм.
  • Настил кровли - металлочерепица, производитель Grand Line, 0.5 мм.
  • Цвет предоставляется на выбор заказчику.
  • Установка вентиляционных проходов на крыши.
  • Установка чердачной лестницы Факро 1200х600 мм, Термо.

Установка окон и входной двери

  • Окна ПВХ Рехау 70 Грация, двухкамерный стеклопакет.
  • Отлив, подоконник, москитная сетка — в комплекте.
  • Открывание створок на окнах - по согласованию с заказчиком.
  • Входная дверь с терморазрывом, утепленная, металлическая.

Стоимость от 4 100 000 рублей.

Наружная отделка просчитываются индивидуально, учитывая выбор материала.

Стоимость не подлежит изменению после подписания настоящего договора.

Дополнительные строительные работы со стороны Заказчика будут оформляться следующим дополнительным соглашением.

Хочу такой дом!

Холуденово-2
Проект «Холуденово-2»
150 м²   15х11м   1 этаж  

Посмотреть все объекты

Этот сайт использует файлы cookie и метаданные. Продолжая просматривать его, вы соглашаетесь на использование нами файлов cookie и метаданных в соответствии с Политикой конфиденциальности. +