Избранное

Строительство одноэтажного дома для постоянного проживания из СИП панелей по проекту «Еремино», территория Есино, г.о. Электросталь

Гарантия 5 лет Ипотека Маткап

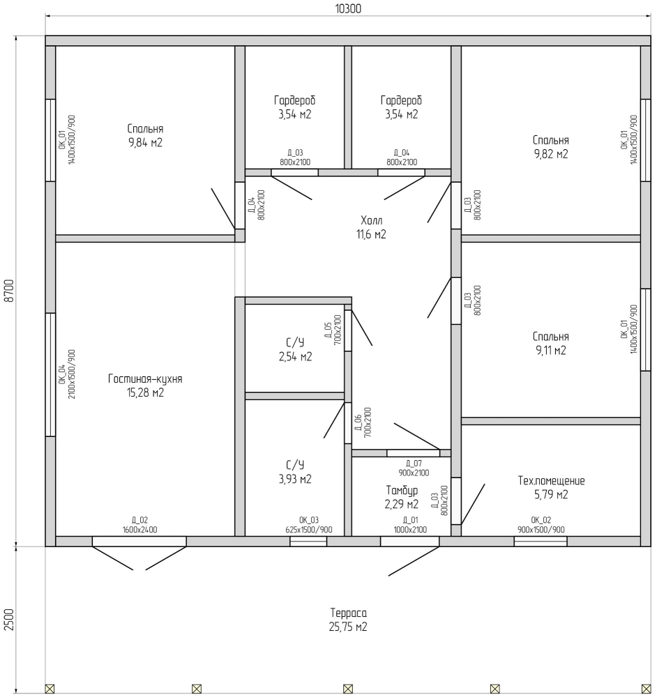
17.02.2026 г. началось строительство дома в г.о. Электросталь, территория Есино, по проекту «Еремино», 90 м², 10,3х8,7 м + терраса

Проект, площадь и габариты дома

  • Проект «Еремино»
  • Площадь дома — 90 м²
  • Размеры дома по тепловому контуру - 10,3х8,7 м + терраса 25,7 м², 2,5х10,3 м.

Строительство дома состоит из

Монтаж фундамента

  • Строительство данного дома происходит на уже существующий фундамент, сделанный силами Заказчика.

Монтаж коробки дома

  • Обвязка фундамента размером 200х200 мм, сдвоенным брусом 200х200 мм, сдвоенной брус 200х100 мм.
  • Монтаж нулевого перекрытия - СИП панели, толщина 224 мм.
  • Соединения панелей осуществляется брусом камерной сушки, строганным.
  • Возводим наружные и внутренние стены 1 этажа дома — СИП панели, толщина стен 174 мм, внутренние перегородки 124 мм, высота 2800 мм.
  • Монтаж чердачного перекрытия - СИП панели 174 мм.
  • Соединение панелей брус, камерная сушка, строганный.

Монтаж крыши и кровли

  • Настил крыши - металлочерепица, толщина 0,5 мм.
  • Цвет предоставляется на выбор заказчику.
  • Установка вентиляционных проходов 125 мм. /li>

Установка окон и входной двери

  • Окна ПВХ Рехау 70 Грация, двухкамерный стеклопакет, двухкамерный профиль, цвет окон белый.
  • Отлив, подоконник, москитная сетка — в комплекте.
  • Открывание створок на окнах по согласованию с заказчиком.

Этот сайт использует файлы cookie и метаданные. Продолжая просматривать его, вы соглашаетесь на использование нами файлов cookie и метаданных в соответствии с Политикой конфиденциальности. +