Избранное

Строительство двухэтажного дома для постоянного проживания из СИП панелей по проекту «Папертники» в СНТ «Заря-1», д. Папертники, Пушкинском районе

Гарантия 5 лет Ипотека Маткап

20.09.2025 г началось строительство дома в Пушкинском р-не, д. Папертники, СНТ «Заря-1», по проекту «Папертники», 95 м², 6х8,1 м

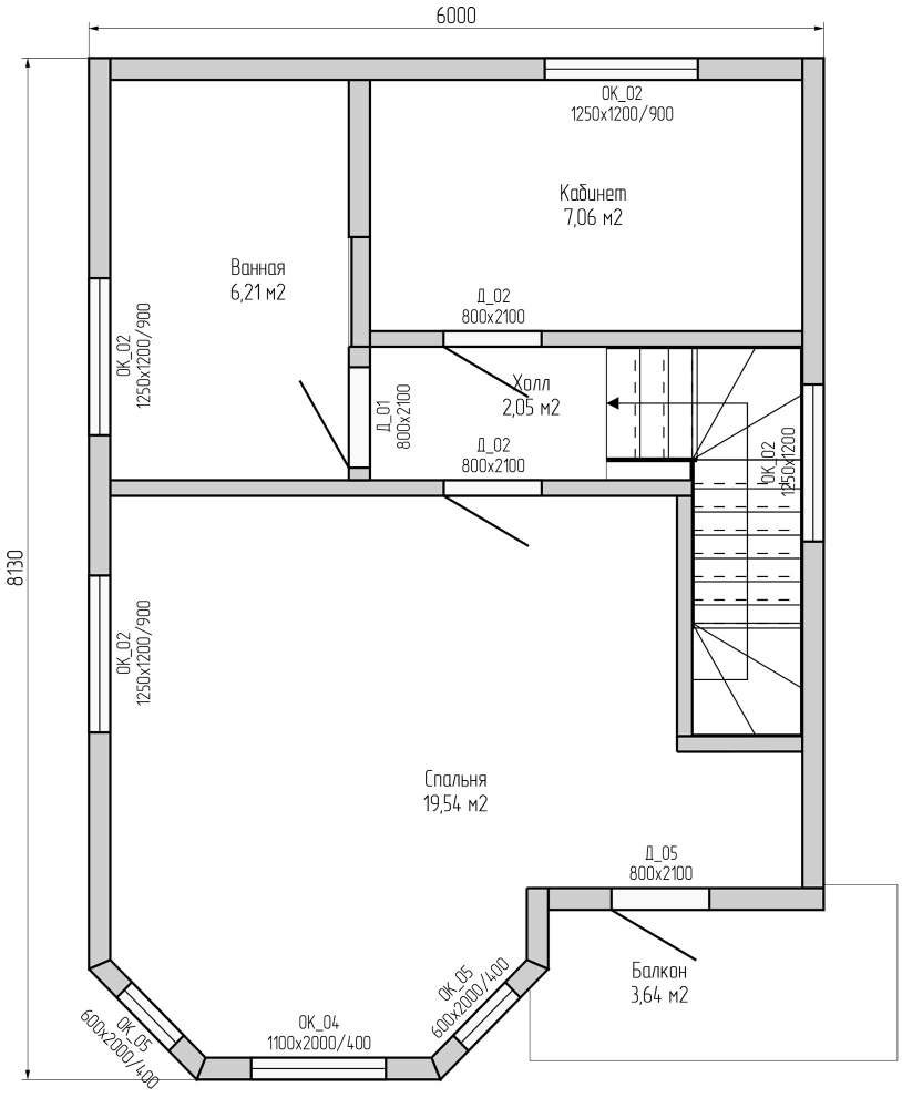
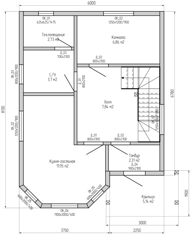
Проект, площадь и габариты дома

Строительство дома состоит из

Монтаж фундамента

  • В данном проекте для фундамента используются винтовые сваи, диаметр 108 мм, длина 2 500 мм.

Монтаж коробки дома

  • Обвязка фундамента размером 200х200 мм, сдвоенный брус 200х100 мм.
  • Монтаж нулевого перекрытия - СИП панели, толщина 224х625 мм, усиленные.
  • Соединения панелей осуществляется брусом камерной сушки, строганным.
  • Возводим наружные стены 1 и 2 этажа дома — СИП панели, толщина стен 174 мм, высота 2800 мм.
  • Внутренние стены 1 и 2 этажей дома — СИП панели, толщина стен 124 мм, высота 2 800 мм.
  • Монтаж межэтажного перекрытие между 1 и 2 этажами — СИП панели, толщина 224х625 мм, усиленные.
  • Монтаж чердачного перекрытия - СИП панели 174 мм.
  • Соединение панелей брус, камерная сушка, строганный.

Монтаж крыши и кровли

  • Крыша - стропильная система 150х50 мм.
  • Настил крыши - металлочерепица, Grand Line, толщина 0.5 мм.
  • Цвет предоставляется на выбор заказчику.
  • Установка вентиляционных проходов на крыши.
  • Установка чердачной лестнице Факро, 1200х600 мм, Термо.

Установка окон и входной двери

  • Окна ПВХ Рехау 70 Грация, двухкамерный стеклопакет.
  • Отлив, подоконник, москитная сетка — в комплекте.
  • Открывание створок на окнах по согласованию с заказчиком.
  • Входная дверь с терморазрывом, утепленная, металлическая.

Стоимость от 3 000 000 рублей.

Наружная отделка просчитываются индивидуально, учитывая выбор материала

Стоимость не подлежит изменению после подписания настоящего договора.

Дополнительные строительные работы со стороны Заказчика будут оформляться следующим дополнительным соглашением.

Хочу такой дом!

Папертники
Проект «Папертники»
95 м²   6х8,1м   2 этажа  

Посмотреть все объекты

Этот сайт использует файлы cookie и метаданные. Продолжая просматривать его, вы соглашаетесь на использование нами файлов cookie и метаданных в соответствии с Политикой конфиденциальности. +