Избранное

Строительство двухэтажного дома для постоянного проживания из СИП панелей по проекту «Мамонтово» в д. Мамонтово, Ногинском районе

Гарантия 5 лет Ипотека Маткап

07.11.2025 г. началось строительство дома в Ногинском р-не, д. Мамонтово, по проекту «Мамонтово», 100 м², 5х10 м + терраса 3х15 м, 15 м² + крыльцо 4,5 м²

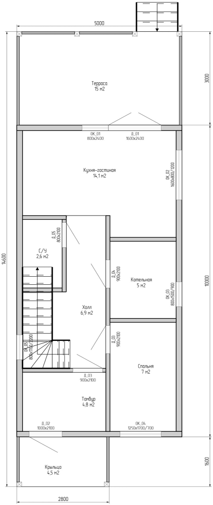
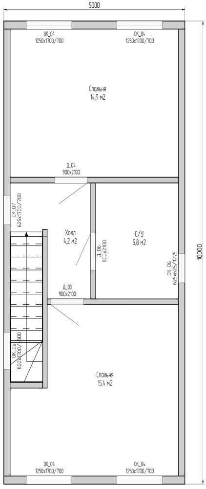
Проект, площадь и габариты дома

  • Проект «Мамонтово»
  • Площадь дома — 100 м²
  • Размеры дома по тепловому контуру - 5х10 м + терраса 3х15 м, 15 м² + крыльцо 4,5 м²

Строительство дома состоит из

Монтаж фундамента

  • В данном проекте для фундамента используются винтовые сваи, диаметр 108 мм, длина 2 500 мм.

Монтаж коробки дома

  • Обвязка фундамента размером 200х200 мм, сдвоенный брус 200х100 мм.
  • Монтаж нулевого перекрытия - СИП панели, толщина 224х625 мм, усиленные.
  • Соединения панелей осуществляется брусом камерной сушки, строганным.
  • Возводим наружные стены 1 и 2 этажа дома — СИП панели, толщина стен 174 мм, высота 2800 мм.
  • Монтаж межэтажного перекрытие между 1 и 2 этажами — СИП панели, толщина 224х625 мм, усиленные.
  • Монтаж чердачного перекрытия - СИП панели 174 мм.
  • Соединение панелей брус, камерная сушка, строганный.

Монтаж крыши и кровли

  • Крыша - стропильная система 150х50 мм.
  • Настил крыши - металлочерепица, Grand Line, толщина 0.5 мм.
  • Цвет предоставляется на выбор заказчику.
  • Установка вентиляционных проходов на крыши.

Установка окон и входной двери

  • Окна ПВХ Рехау 70 Грация, двухкамерный стеклопакет.
  • Отлив, подоконник, москитная сетка — в комплекте.
  • Открывание створок на окнах по согласованию с заказчиком.
  • Входная дверь с терморазрывом, утепленная, металлическая.

Стоимость не подлежит изменению после подписания настоящего договора.

Дополнительные строительные работы со стороны Заказчика будут оформляться следующим дополнительным соглашением.

Хочу такой дом!

Мамонтово
Проект «Мамонтово»
100 м²   5х10м   2 этажа  

Посмотреть все объекты

Этот сайт использует файлы cookie и метаданные. Продолжая просматривать его, вы соглашаетесь на использование нами файлов cookie и метаданных в соответствии с Политикой конфиденциальности. +