Избранное

Строительство одноэтажного дома для постоянного проживания из СИП панелей по проекту «Ким», д. Клишева, Раменский г.о.

Гарантия 5 лет Ипотека Маткап

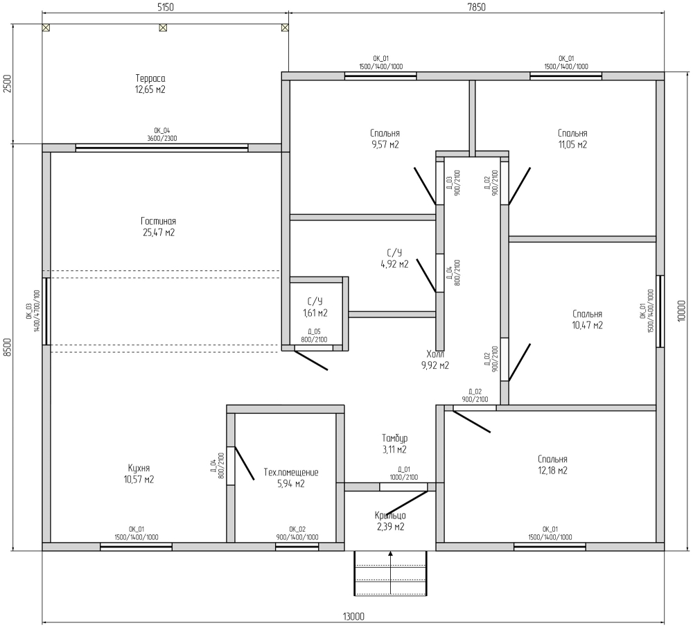
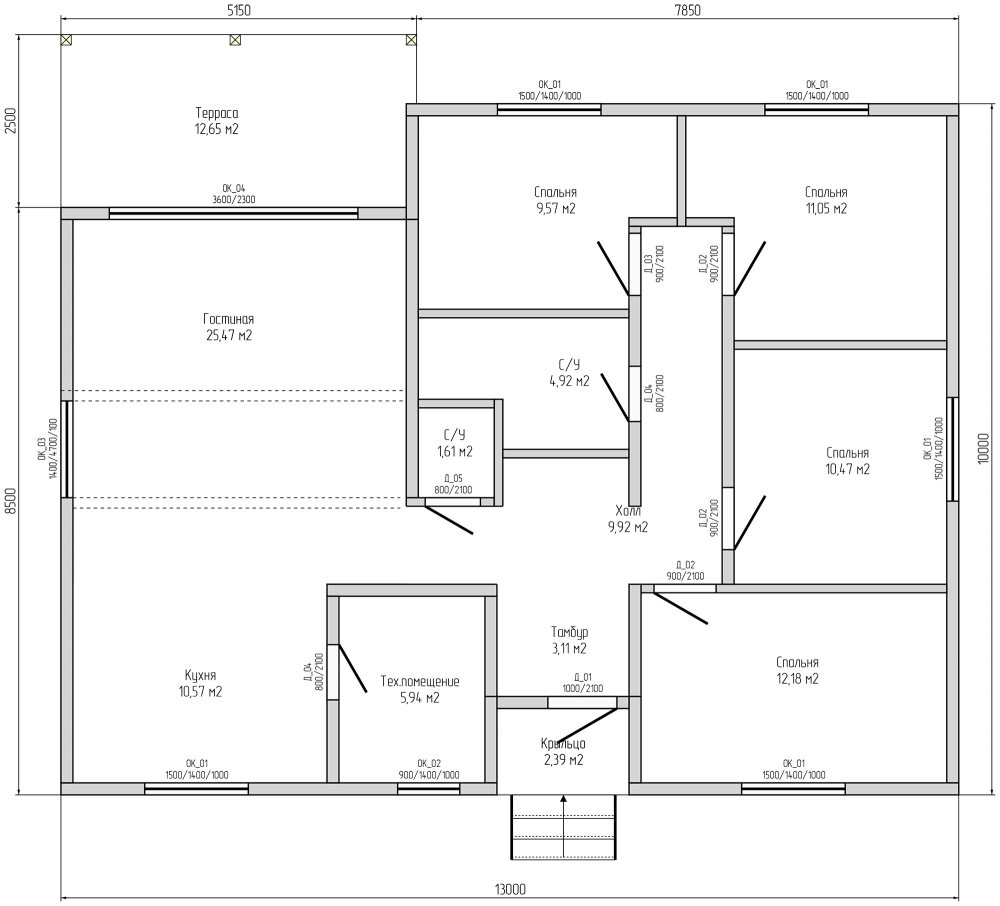
15.01.2026 г. началось строительство дома в Раменском районе, д. Клишева, по проекту «Ким», 120 м², 13х10 м + терраса + крыльцо

Проект, площадь и габариты дома

  • Проект «Ким»
  • Площадь дома — 120 м²
  • Размеры дома по тепловому контуру - 13х10 м + терраса 13 + крыльцо.

Стоимость не подлежит изменению после подписания настоящего договора.

Дополнительные строительные работы со стороны Заказчика будут оформляться следующим дополнительным соглашением.

Этот сайт использует файлы cookie и метаданные. Продолжая просматривать его, вы соглашаетесь на использование нами файлов cookie и метаданных в соответствии с Политикой конфиденциальности. +