Избранное

Строительство двухэтажного дома для постоянного проживания из СИП панелей по проекту «Тимонино», с. Мышенское, Ступинский г.о.

Гарантия 5 лет Ипотека Маткап

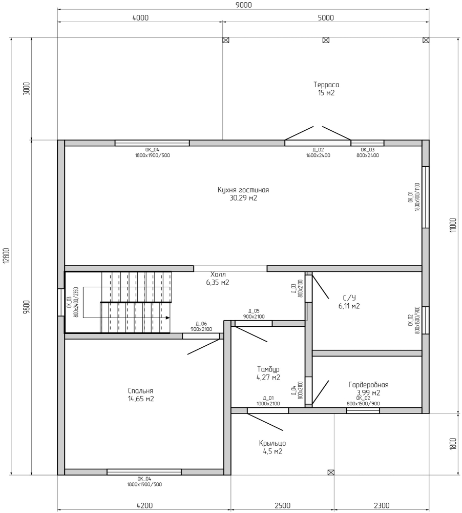
12.01.2026 г. началось строительство дома в Ступинском районе, с. Мышенское, по проекту «Тимонино», 159 м², 8х9 м + терраса + крыльцо

Проект, площадь и габариты дома

  • Проект «Тимонино»
  • Площадь дома — 159 м²
  • Размеры дома по тепловому контуру - 8х9 м + терраса + крыльцо

Стоимость не подлежит изменению после подписания настоящего договора.

Дополнительные строительные работы со стороны Заказчика будут оформляться следующим дополнительным соглашением.

Хочу такой дом!

Тимонино
Проект «Тимонино»
159 м²   8х9м   2 этажа  

Посмотреть все объекты

Этот сайт использует файлы cookie и метаданные. Продолжая просматривать его, вы соглашаетесь на использование нами файлов cookie и метаданных в соответствии с Политикой конфиденциальности. +